The Charles Street Area Corporation has been planning to redevelop a vacant stretch for seven years — almost as long as the land bank has been ramping up.
“PublicSource is an independent nonprofit newsroom serving the Pittsburgh region. Sign up for our free newsletters.”
Residents of a North Side neighborhood say the spirit of Dorothy Mae Richardson lives on through revitalization efforts that align with the iconic Black housing activist’s belief in homeownership over renting as a way to prevent urban decay.
The Pittsburgh Land Bank board on Friday approved a resolution to buy 13 empty lots from the city in the North Side’s Charles Street area. The land bank aims to sell those empty lots to the Charles Street Area Corporation, a neighborhood organization that intends to build houses on the lots to be sold to area residents.
The land bank’s decision is the latest step for the recently invigorated decade-old institution that suffered from years of unfulfilled promises. In the Charles Street case, the land bank will be executing its core role of clearing the properties’ titles of debt and tax liens before selling them to the community organization. The land bank will use about $128,000 in COVID-era federal funding to acquire and quiet the titles, among other things.
A date for the transfer of the properties to the Charles Street Area Corporation hasn’t been determined yet.
“This neighborhood, Perry South, and North Side in general hasn’t had any more affordable homeownership investment,” said Angela Williams, executive director of the Charles Street Area Corporation. “It’s been about 20 years since there’s been new construction [for] homeownership on the North Side.”
Williams, speaking during Friday’s board meeting, said that she and her organization have been “working since 2017 to determine the best course moving forward on how to develop these vacant lots.”
She continued, “We’ve had meetings with [Urban Redevelopment Authority] and other community groups and now seven years later we feel like we’ve charted a course for success.”
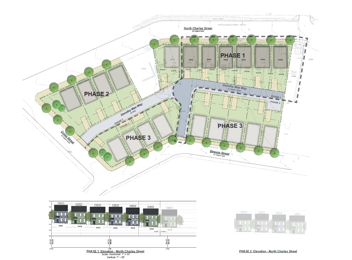
Williams said that the plan is to build six affordable houses to be sold to people in the community earning at or below 80% of the area median income. She also noted that this would be the first phase in a larger effort to build more housing in the area.
In an email sent to residents, Williams said the plan is to create three- and four-bedroom houses with two to two-and-a-half bathrooms. She also wrote that half of the homes built will be available for underserved populations, as defined by federal affordable homeownership guidelines, which include households with special needs, military veterans and/or recently homeless occupants.
Rebecca Mizikar, a landscape architect with the civil engineering group PVE, said that the community group hired her company to survey the land between North Charles Street and Strauss Street.
As part of their survey, Mizikar said, they found the now-vacant area used to have houses and businesses as evidenced by foundation remnants.
Several residents attended the land bank meeting virtually to voice their support for the effort.
Debra Gist, a longtime resident of the Charles Street Valley — which the city considers part of Perry South — recalled the area’s past.
“When I was younger, the community was so different,” she said. “There [were] businesses, housing, no vacant lots like we have here today. And the community was so much better. It was family oriented. … I would love to see the houses built.”
“Our area needs revitalization,” agreed La Rita Alston, a longtime resident of the area. “Creating housing will create a more sustainable Charles Street community. I’m looking forward to a brighter future.”
Nearby communities are also paying attention to the Charles Street activity.
“Currently [Williams] and I are working to bring home buyer resources to the North Side at large,” said Rhonda Strozier, the executive director of Fineview and Perry Hilltop Citizens Council. “We are preparing people for housing and housing for people. As executive director and nearby neighbor, I stand in support of these parcels being held for Charles Street Valley.”
Eric Jankiewicz is PublicSource’s economic development reporter, and can be reached at ericj@publicsource.org or on Twitter @ericjankiewicz.
This article first appeared on PublicSource and is republished here under a Creative Commons license.
